
기흥ICT밸리 SK V1 C동은 용인첨단산업단지 A, B동(2021년 5월 준공)에 이어 두번째로 공급된 지식산업센터입니다.
단지는 기흥역과 신갈역 사이 대로변에 위치하며 대지 2,743㎡ 부지에 지하5층, 지상15층 연면적 21,937.52㎡규모로 공급되었습니다. 용도는 지식산업센터, 근린생활시설로 구성되었습니다.
1차로 공급된 '기흥 ICT 밸리 SK V1 A, B동'은 42,777㎡ 대지에 연면적 197,690.26㎡(59,906.13평) 지하 6층~지상 29층 규모 2개동으로 구성되었으며, 수원 생활권에 속해 있어 편리한 도시 인프라 시설을 모두 누릴 수 있는 첨단산업단지입니다. 2021년 6월부터 입주를 시작하였으며 사업 초기부터 경기남부권 랜드마크 건물로 평가받고 있는 지식산업센터입니다.
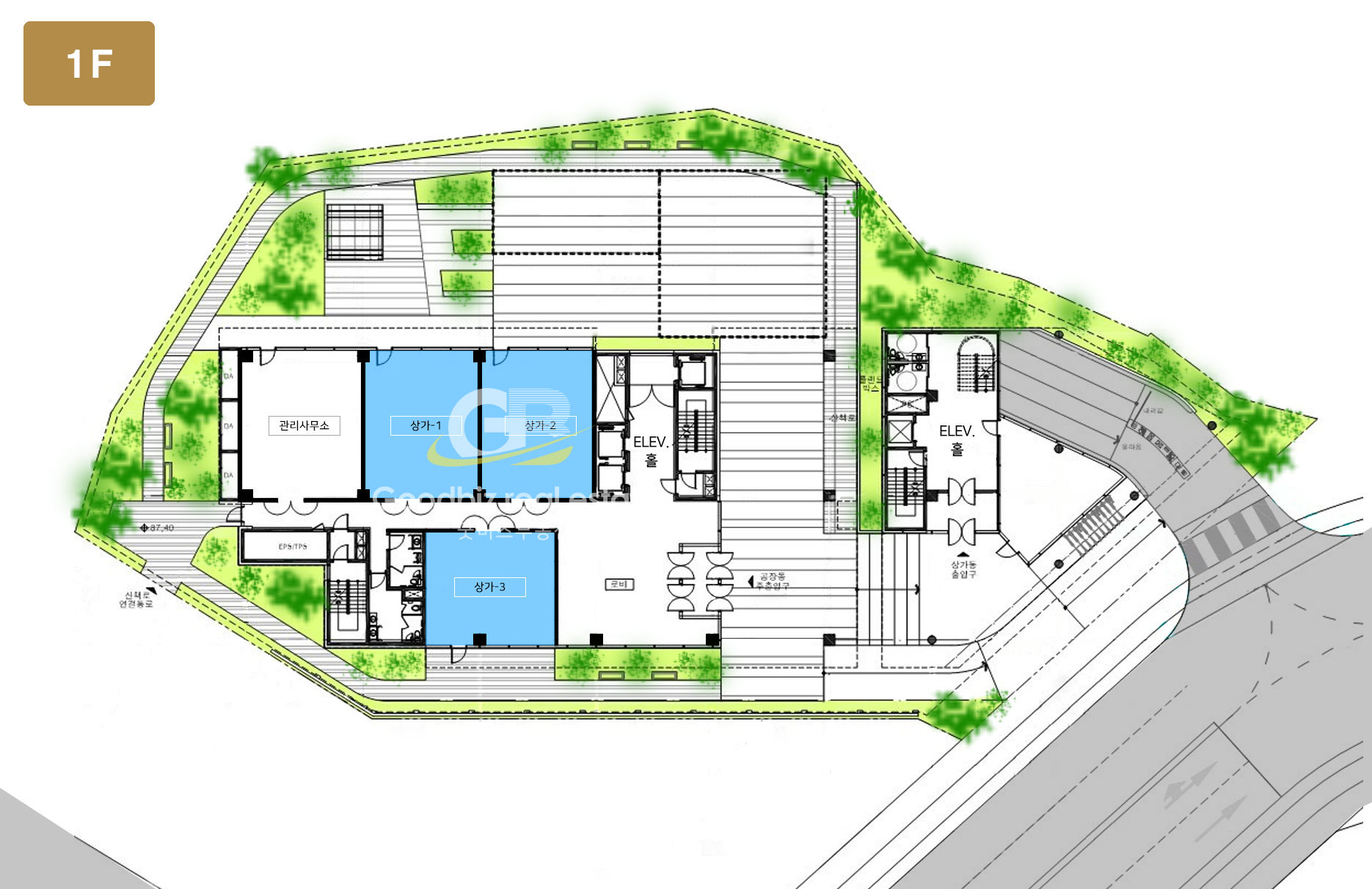
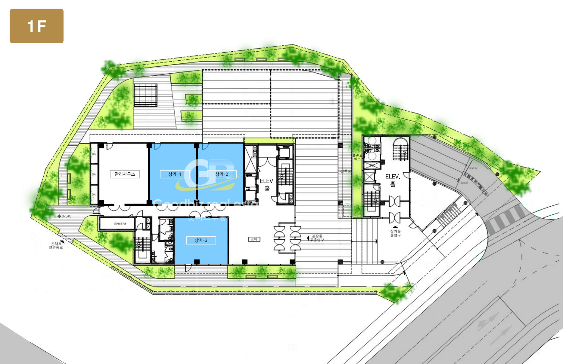
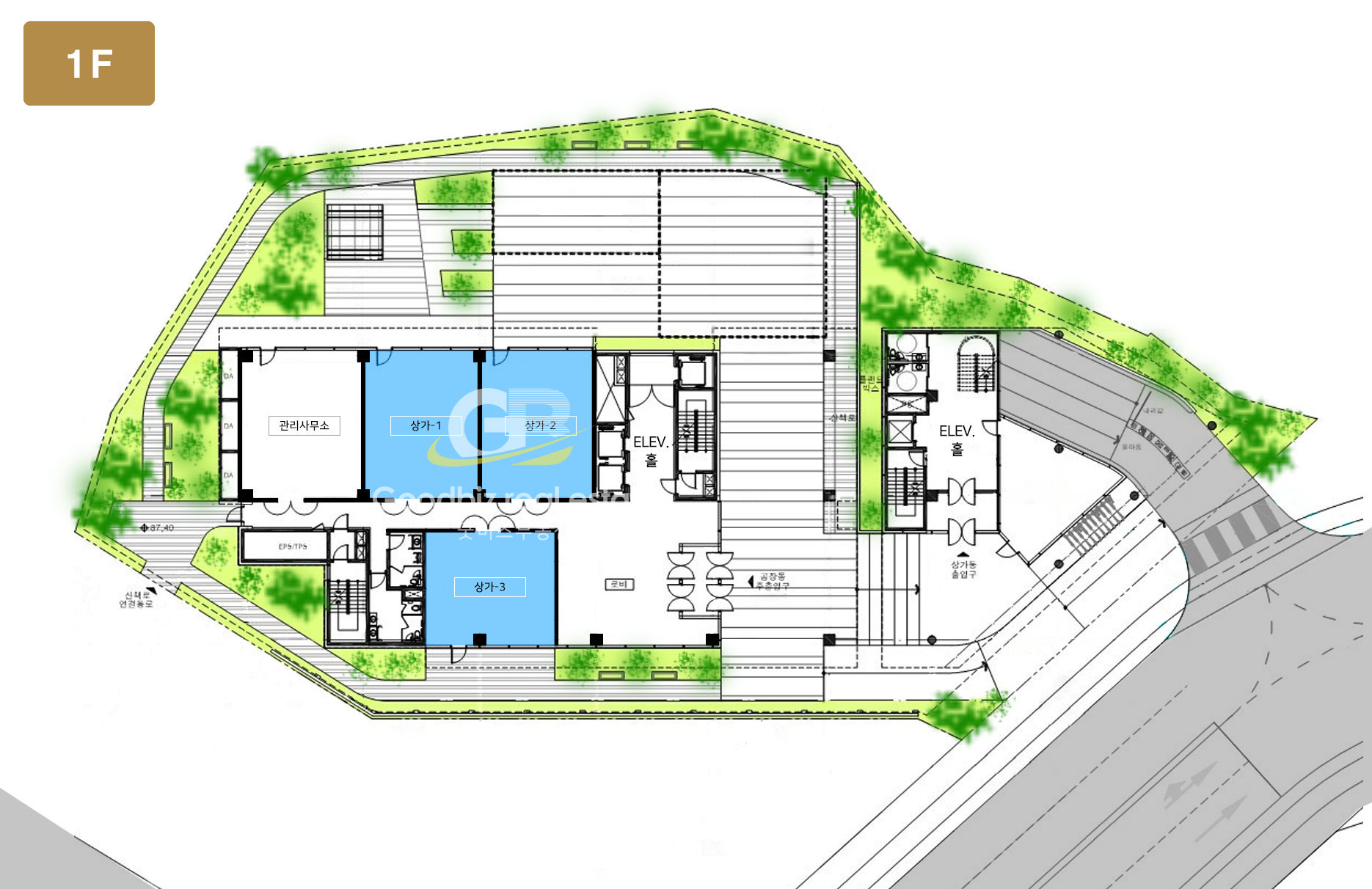
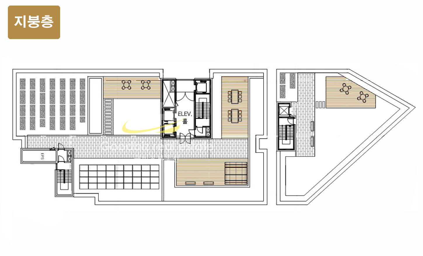
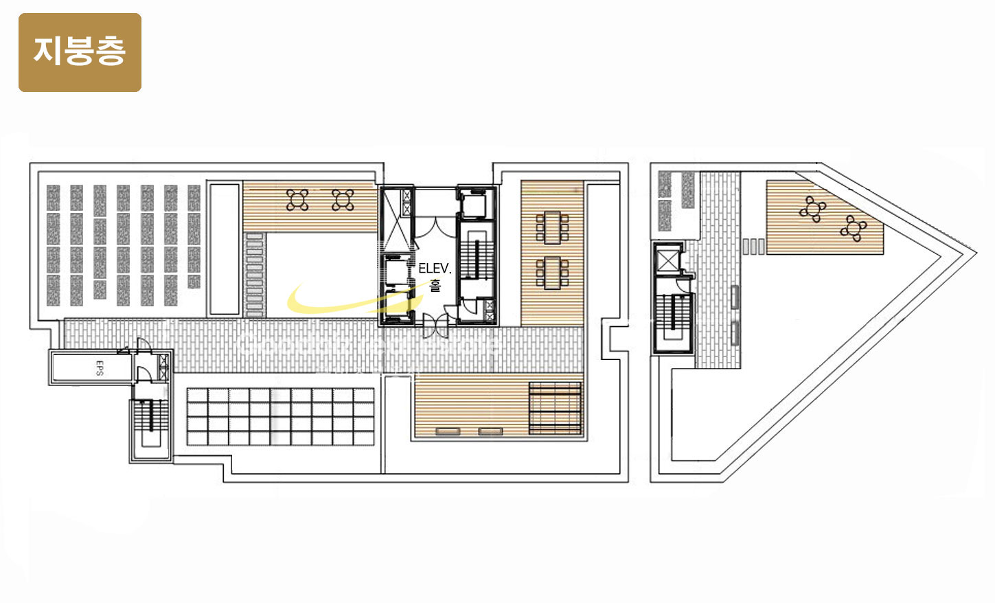
○ 배치도

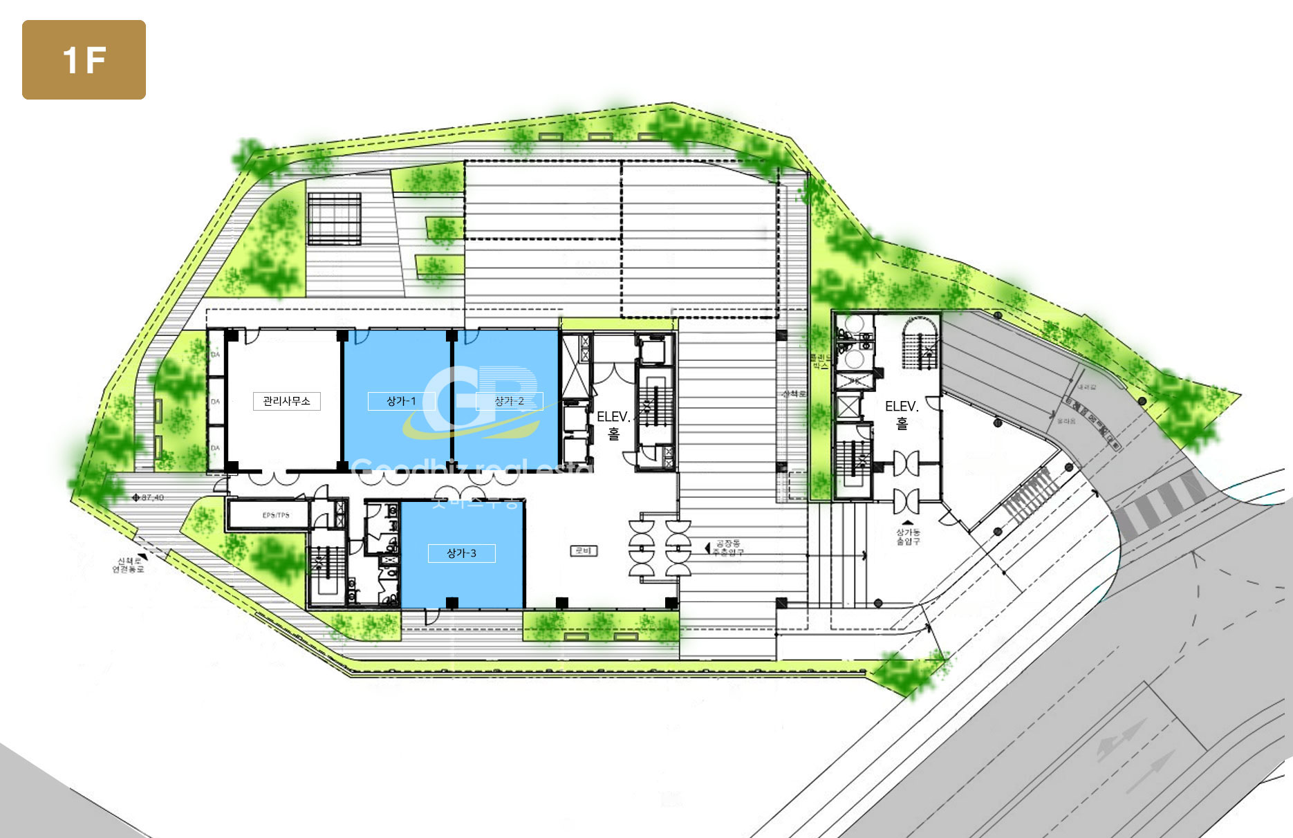
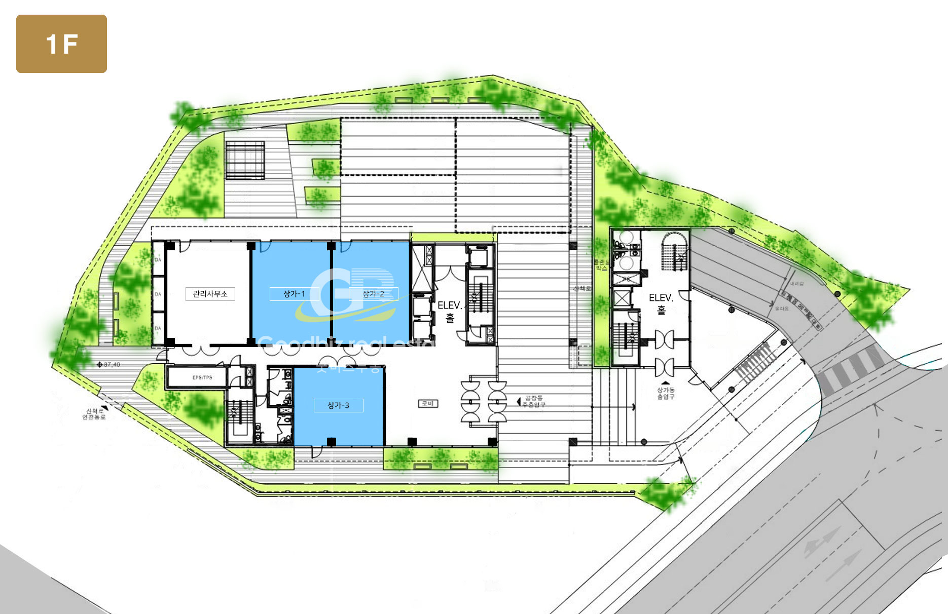
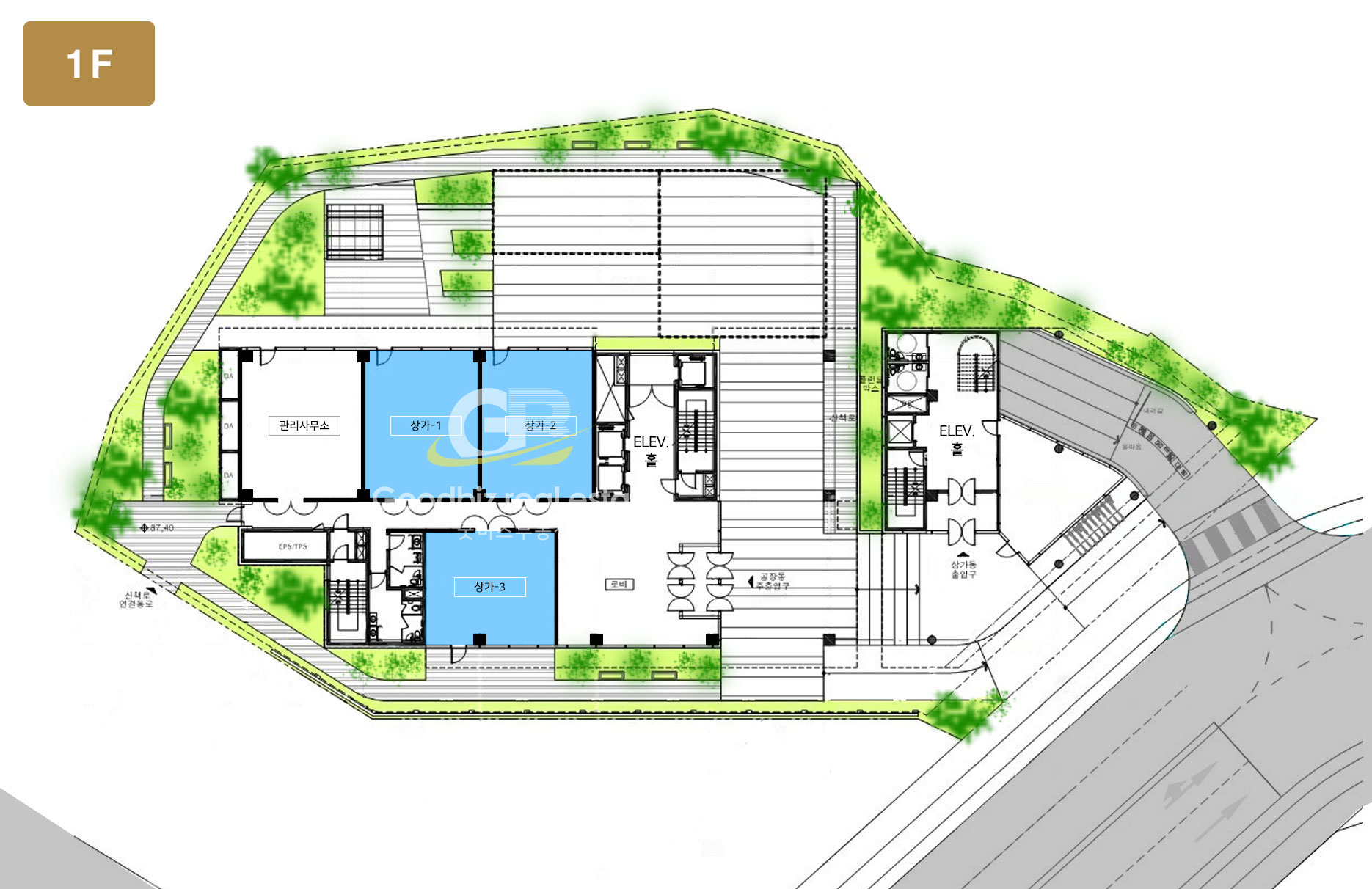
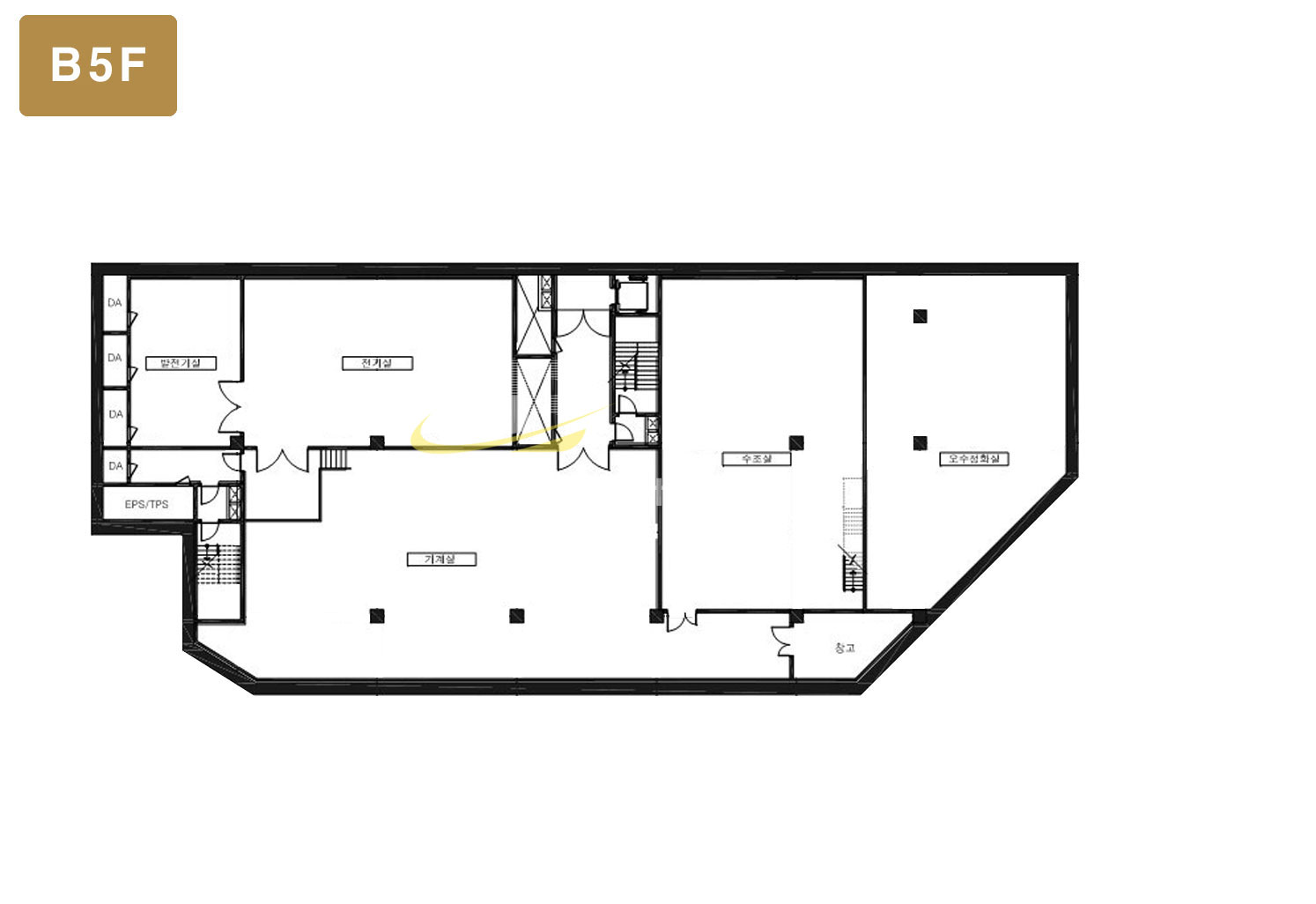
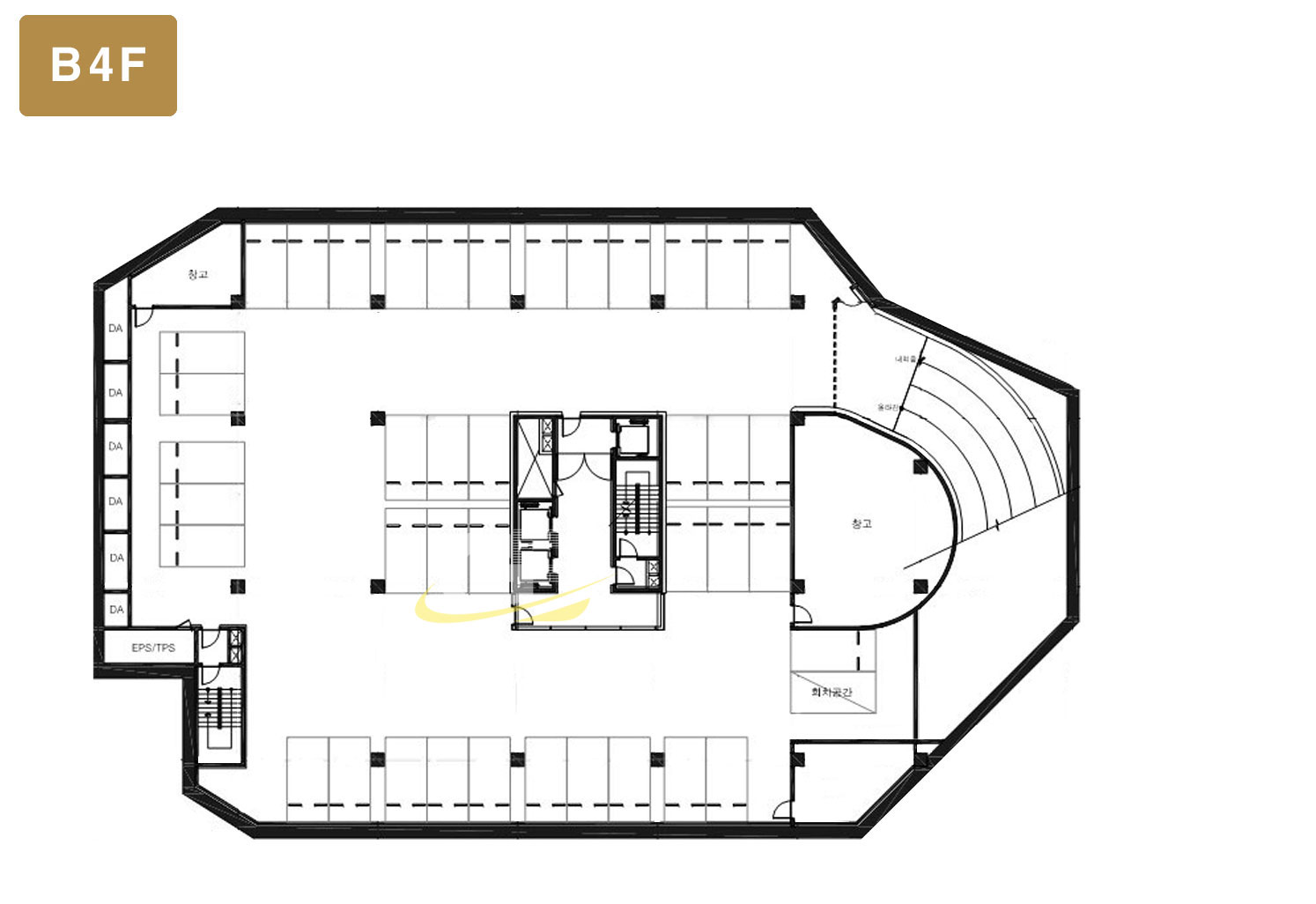
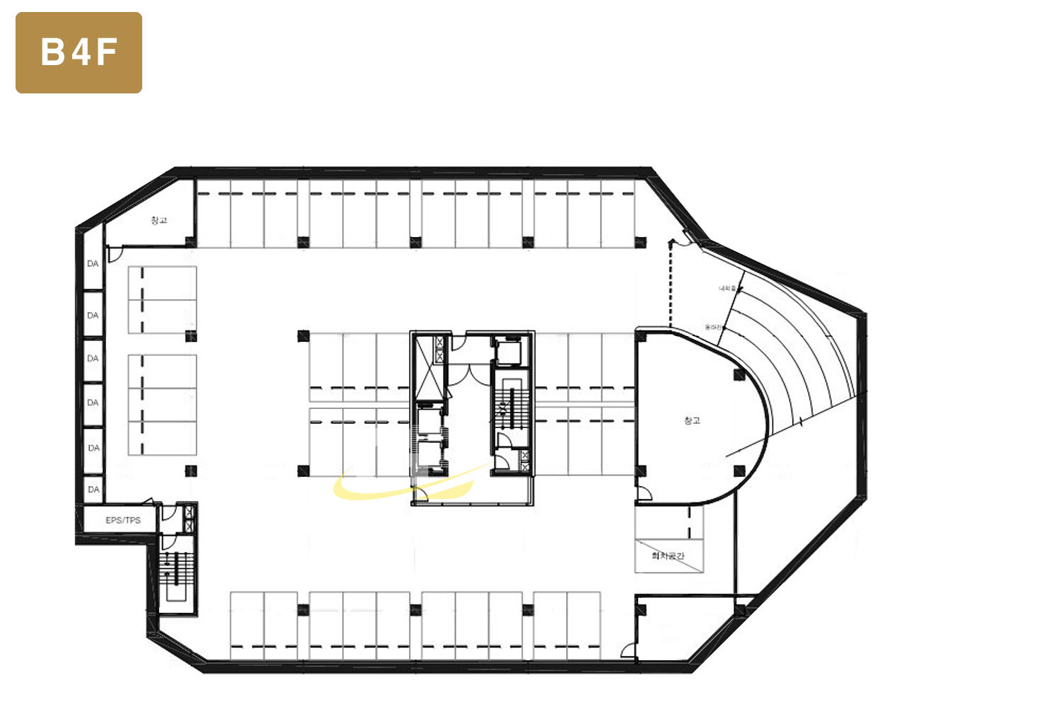
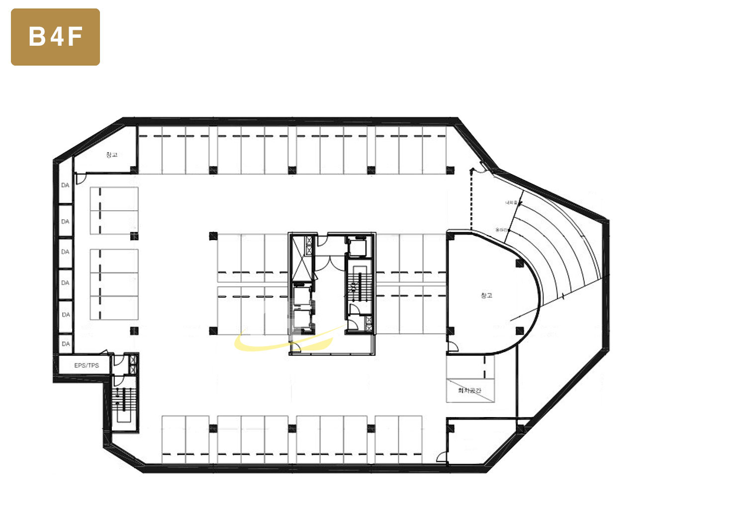
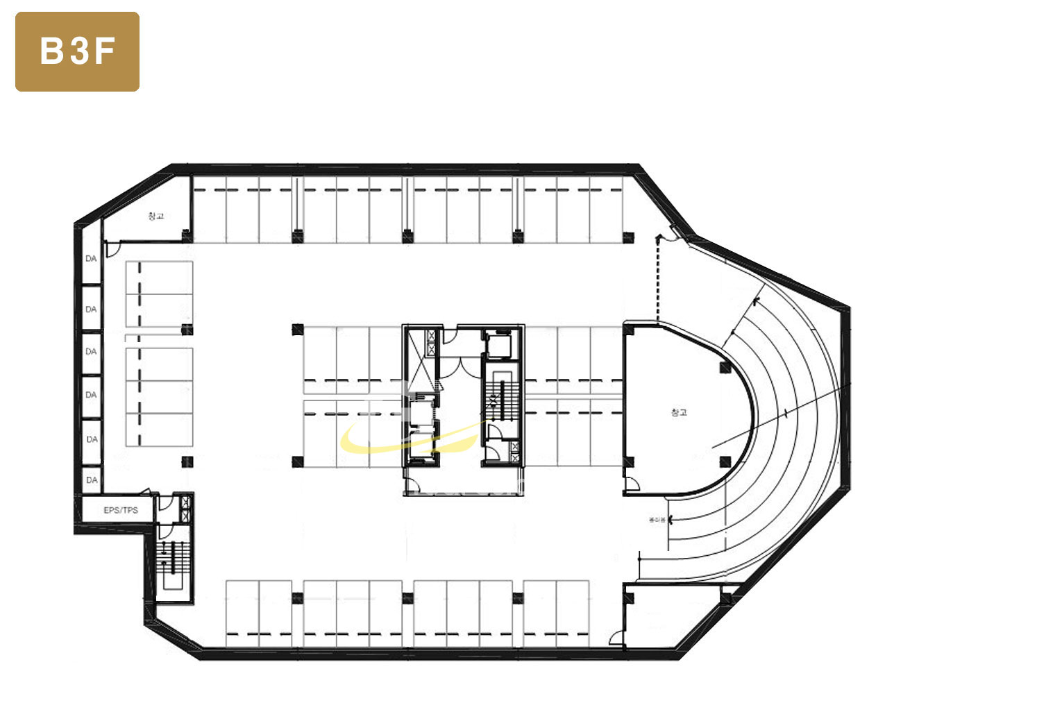
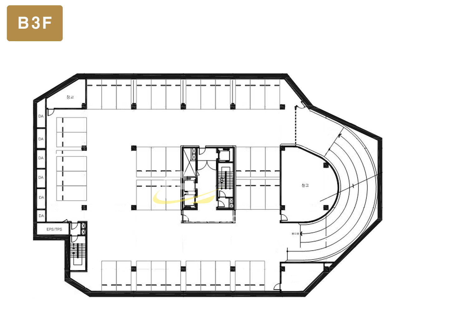
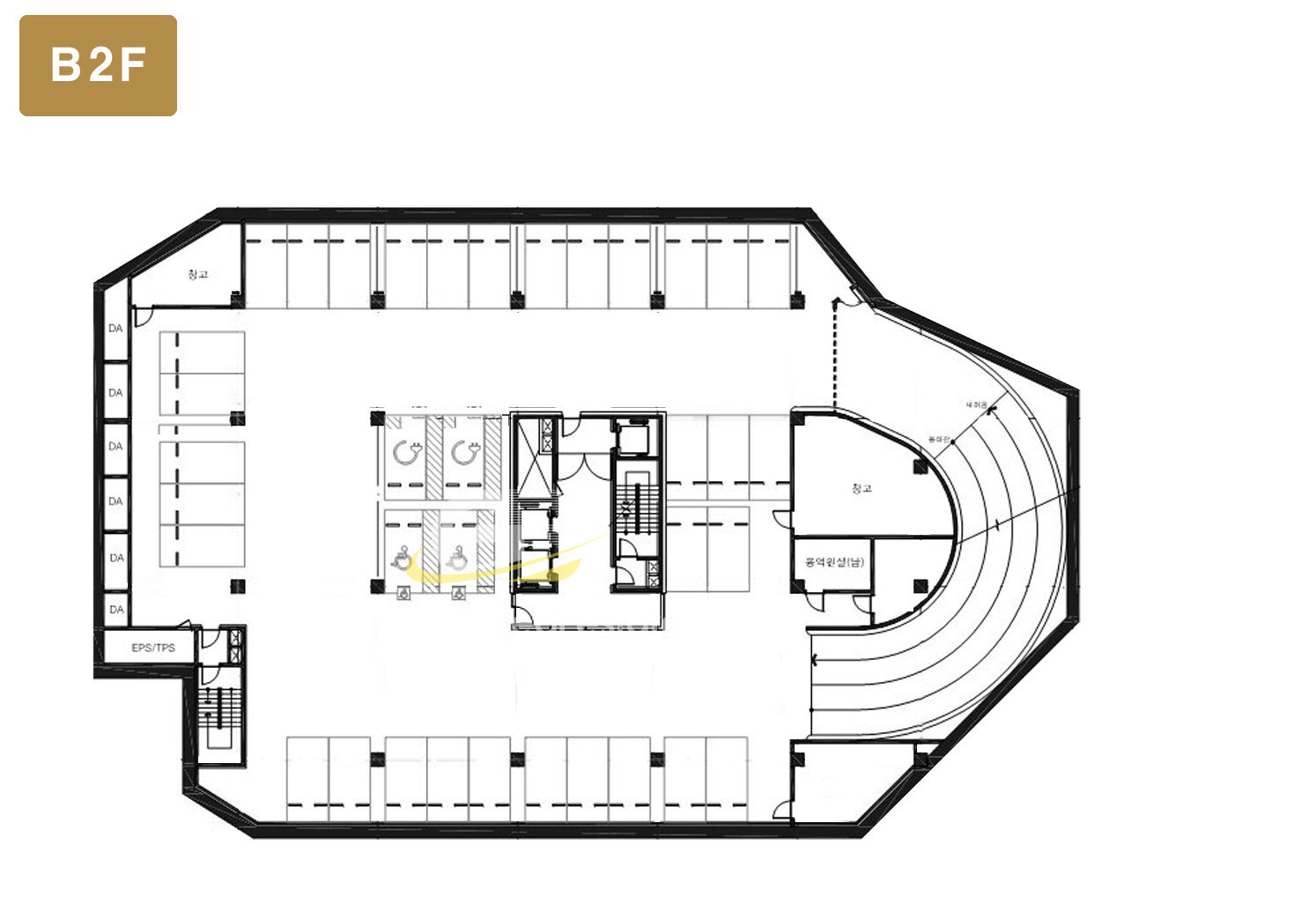
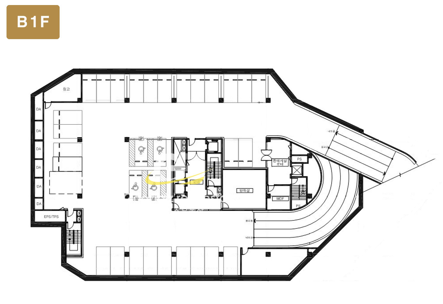
○ 평면도












수원, 광교 지식산업센터 매매, 임대 문의와 입주에 관한 궁금한 내용 있으시면
저희 '굿비즈부동산'으로 연락 주세요. 성심성의껏 안내드리겠습니다.

반응형
'• 관리 단지 안내' 카테고리의 다른 글
| 시그니처광교ㅣ용인지식산업센터 (0) | 2023.01.17 |
|---|---|
| 광교 더퍼스트ㅣ수원지식산업센터 (0) | 2022.11.15 |
| 광교우미뉴브ㅣ광교지식산업센터 (0) | 2022.10.25 |
| 광교센트럴비즈타워ㅣ광교지식산업센터 (0) | 2022.10.24 |
| 에이스광교타워 3차ㅣ광교지식산업센터 (0) | 2022.06.08 |
